Vue d'ensemble
Descriptif du bien
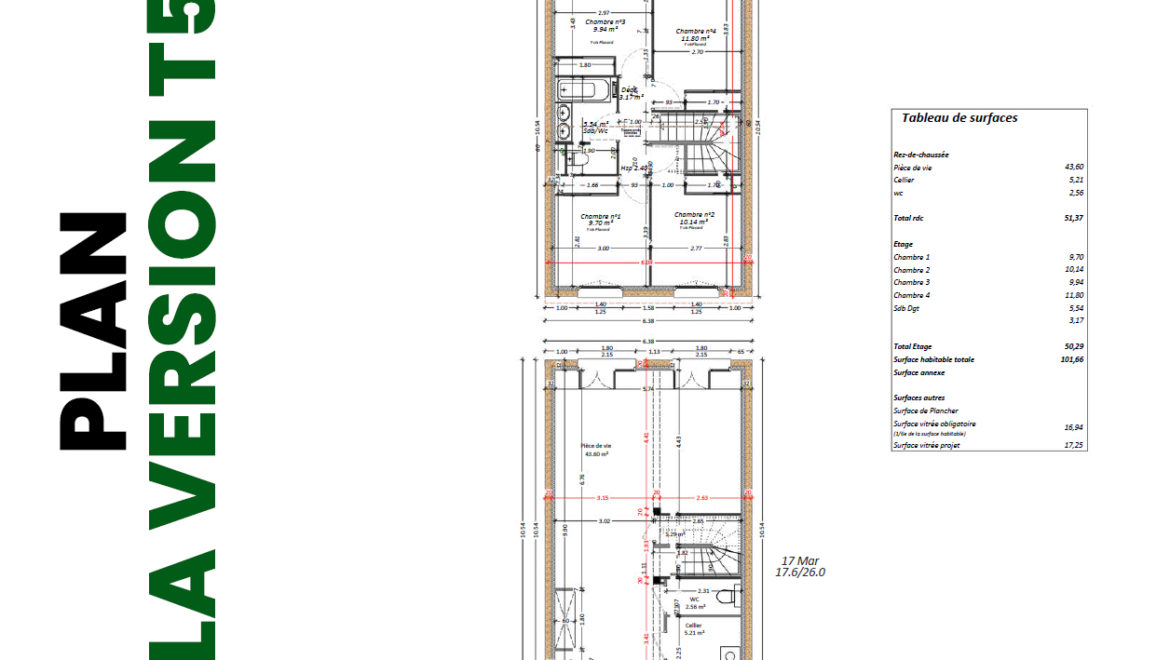
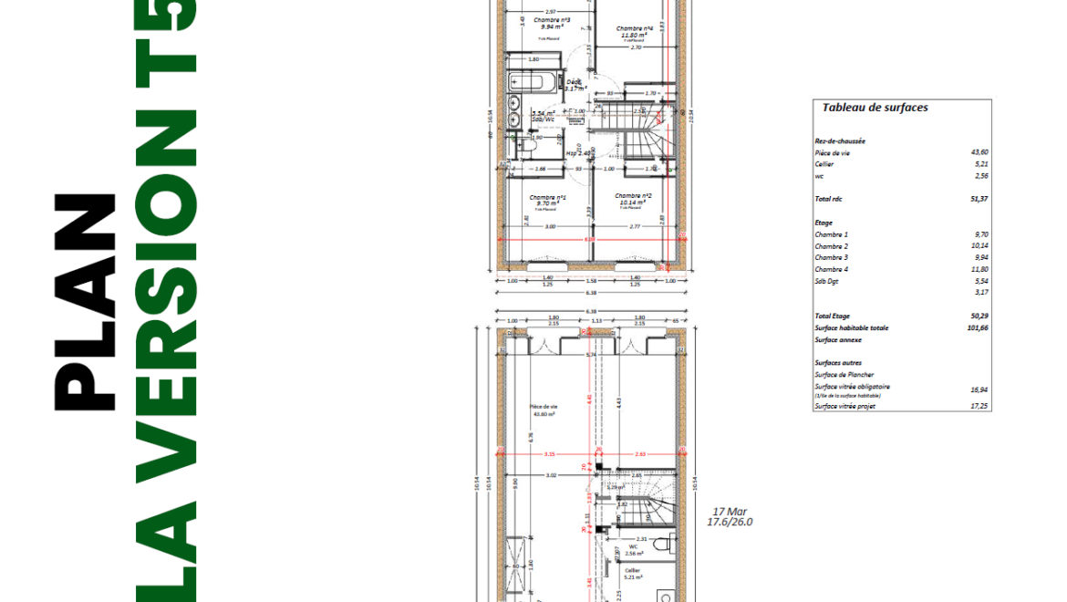
Maison 6 pièces 102 m²
Votre agence « ONESTIM » Vos biens immobiliers à Montbrison, vous propose cette maison à Montbrison, dans le secteur privilégié du Bouchet, alliant confort, modernité et respect des dernières normes RE2020.
Maisons à étage, personnalisables en 2, 3 ou 4 chambres selon vos besoins de 71m² à 102m², sur un terrain de 223m² a 337m².
Des Prestations Haut de Gamme :
-Normes RE2020 : performance énergétique et confort optimisé
-Pompe à chaleur avec climatisation : bien-être en toute saison
-Carrelage grand format 60×60 : design moderne et entretien facile
-Tuiles en terre cuite et murs en brique : durabilité et isolation renforcée
-Jardin privatif : un espace extérieur pour profiter en famille
-Garage avec accès direct à la maison (en option)
-Maison connectée : gestion à distance de votre confort
-Pièce de vie spacieuse avec cuisine ouverte et cellier
-2, 3 ou 4 chambres avec placards intégrés pour un agencement optimal
-Salle de bain personnalisable et 2 WC : adaptez votre intérieur à vos envies
-Volets roulants électriques : sécurité et praticité
Prix : à partir de 198 500euros FAI
(comprend la maison, le terrain et l’assurance dommages ouvrage hors taxes et finitions)
Intéressé(e) ? Contactez-nous dès aujourd’hui pour plus d’informations et une visite !
Mentions légales : Les informations sur les risques auxquels les biens sont exposés sont disponibles sur le site Géorisques : www.georisques.gouv.fr, les honoraires sont à la charge du vendeur, notre barème est consultable sur notre site. Diagnostics non soumis, le bien n’est pas soumis au régime de copropriété.
Surface : 102 m²
Non soumis au DPE
Prix du bien : 198500 euros
Honoraires à la charge du vendeur
Consommation énergie primaire : Non communiqué
Consommation énergie finale : 0 kWh/m²/an













